Lokal na wynajem, 68,49m2, ul. Kaliska 10
Włocławek Pokaż na mapie ›
Dodane: Wtorek, 21 Kwiecień, 2026 21:03
2 739 zł
Szczegóły ogłoszenia
- Kategoria: Biura i lokale / Do wynajęcia
- Przeznaczenie:Inne przeznaczenie
- Powierzchnia:68 m2
- Sprzedaż:Pośrednik
- Cena: 2 739 zł
Opis oferty
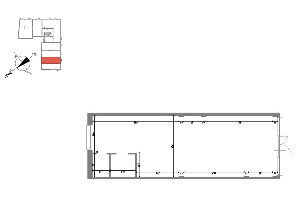
Do wynajęcia lokal użytkowy – 68,49 m² – ul. Kaliska 10Oferujemy do wynajęcia lokal użytkowy o powierzchni 68,49 m²,
położony na parterze nowoczesnego budynku
usługowo-handlowo-mieszkalnego przy ul. Kaliskiej 10.
Podstawowe informacjePowierzchnia: 68,49 m²Czynsz najmu: 40 zł /
m²Miesięczny czynsz: 2 739,60 zł nettoKaucja: 3 000 złPiętro:
parterRok oddania budynku: 2022Status: lokal użytkowyDostępny od: 1
czerwcaLokalizacja
Lokal znajduje się w bardzo dobrej, rozpoznawalnej części miasta
– przy skrzyżowaniu ulic Kaliskiej i Smolnej.
To miejsce o dużym natężeniu ruchu pieszych i samochodów, w
bezpośrednim sąsiedztwie:
nowej zabudowy mieszkaniowej i usługowej,lokali
handlowo-usługowych,punktów generujących stały ruch klientów
(m.in. market, targowisko).
Duże witryny zapewniają świetną widoczność oraz bardzo dobre
doświetlenie lokalu, co sprzyja prowadzeniu działalności.
Standard wykończeniapodłoga: płytki gresowe,ściany: gładkie,
malowane na biało,sufit podwieszany z nowoczesnym oświetleniem
LED,lokal czysty, zadbany, gotowy do użytkowania,brak konieczności
dodatkowych nakładów.
Koszty utrzymaniaopłaty do wspólnoty: ok. 650 zł / miesiąc,media:
płatne według zużycia.
Szukasz dobrze zlokalizowanego miejsca na swój biznes?
Ten lokal to świetna propozycja dla działalności usługowej,
handlowej lub biurowej.
Chcesz poznać szczegóły lub umówić się na prezentację?
Zadzwoń lub napisz – chętnie odpowiem na pytania i pokażę
nieruchomość na żywo.
Karolina Prus-Wawrzyniak
518 - pokaż numer telefonu -
@
Zapraszam również do naszego biura:
Włocławek, ul. Warszawska 15 lok. 1 (I piętro)
"Właścicielem ogłoszenia wraz z jego elementami jest Freedom
Nieruchomości Sp. z o.o. lub podmioty współpracujące. Wszelkie
prawa zastrzeżone. Kopiowanie, rozpowszechnianie oraz korzystanie z
niniejszych materiałów w jakikolwiek inny sposób wykraczający poza
dozwolony użytek określony przepisami ustawy z 4 lutego 1994 r. o
prawie autorskim i prawach pokrewnych (Dz. U. 1994, nr 24 poz. 83 z
późn. zm.) bez pisemnej zgody Freedom Nieruchomości Sp. z o.o. lub
podmiotów współpracujących jest zabronione i może stanowić
podstawę odpowiedzialności cywilnej oraz karnej.
Ponadto niniejsze materiały stanowią tajemnicę przedsiębiorstwa
Freedom Nieruchomości Sp. z o.o. lub podmiotów współpracujących w
rozumieniu ustawy z dnia 16 kwietnia 1993 r. o zwalczaniu nieuczciwej
konkurencji (Dz. U. z 2003 r., Nr 153, poz. 1503 z późn. zm.).
Niniejsze ogłoszenie nie stanowi oferty w rozumieniu Kodeksu
Cywilnego, lecz ma charakter informacyjny."
Sprawdź zainteresowanie tym ogłoszeniem
Wyświetlenia
Data dodania
Ostatnio widziany
Obserwujących
Wysłane zapytania
Odsłony telefonu
Powiadom o podobnych ogłoszeniach
Lokalizacja: Włocławek
Kategoria: Nieruchomości » Biura i lokale » Do wynajęcia
Cena: od 2500 zł do 3000 zł Powierzchnia : od 58 m2 do 78 m2
Chcę otrzymywać powiadomienia o nowych ofertach
Karolina Prus-Wawrzyni
Konto firmowe
Na Lento.pl od 02 sty 2024
Odpowiada szybko
Strona użytkownika
- Wypromuj ogłoszenie
- Zgłoś naruszenie
- Drukuj ulotkę
- Edytuj/usuń ogłoszenie
- Udostępnij ogłoszenie
- Dodaj na Facebook


















