Nowe 5 pokoi z garderobą | 2 balkony | Smolna 1
Włocławek Pokaż na mapie ›
Dodane: Sobota, 11 Kwiecień, 2026 00:42
746 424 zł
8482 zł/m2
Szczegóły ogłoszenia
- Kategoria: Mieszkania / Sprzedaż
- Powierzchnia:88 m2
- Liczba pokoi:5 i więcej pokoi
- Zabudowa:Apartamentowiec
- Tech. budowy:Inne
- Piętro :4 piętro
- Liczba pięter:4 piętra
- Rynek:Pierwotny
- Rok budowy:2026
- Sprzedaż:Pośrednik
- Inf. dodatkowe:Balkon
- Cena: 746 424 zł / 8482 zł/m2
Opis oferty
Funkcjonalne mieszkanie 5-pokojowe z garderobą – Osiedle StaraFabryka
Przedstawiamy kolejną propozycję w ramach III Etapu Osiedla Stara
Fabryka przy ul. Smolnej 1 we Włocławku – starannie zaprojektowane
mieszkanie pięciopokojowe z garderobą, dwoma łazienkami i dwoma
balkonami. Inwestycja zrealizowana jest przez KAMARO Nieruchomości
– zaufanego włocławskiego dewelopera.
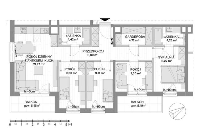
Układ mieszkania:
Pokój dzienny z aneksem kuchennym – 21,97 m²
Sypialnia – 11,22 m² (z bezpośrednim dostępem do łazienki i
garderoby)
Pokój – 10,16 m²
Pokój – 9,71 m²
Pokój – 9,30 m²
Garderoba – 4,72 m²
Łazienka – 4,42 m²
Łazienka przy sypialni – 4,26 m²
Przedpokój – 13,80 m²
Balkon – 5,45 m²
Balkon – 5,49 m²
O inwestycji:
Osiedle Stara Fabryka – III Etap to pięciokondygnacyjny budynek
mieszkalny obejmujący 44 lokale mieszkalne o powierzchniach od 30,58
m² do 96,39 m². Budynek wyposażony będzie w windę obsługującą
kondygnacje od poziomu -1 do 4. piętra.
Deweloper nie dolicza powierzchni pod ściankami działowymi –
kupujesz dokładnie to, za co płacisz.
Do mieszkania istnieje możliwość zakupu:
- komórki lokatorskiej
- miejsca postojowego zewnętrznego lub miejsca w hali garażowej
Mieszkanie zostanie oddane wytynkowane i pomalowane na biało –
gotowe do własnej aranżacji.
Lokalizacja:
Klimatyczna inwestycja w bliskiej odległości od centrum Włocławka,
w spokojnej okolicy. W zasięgu kilkuset metrów:
- sklepy i markety spożywcze
- punkty usługowe i apteki
- przychodnia zdrowia
- szkoła i przedszkole
Warunki zakupu:
- Kupujący nie płaci prowizji pośrednika
- Bezpłatna pomoc w uzyskaniu finansowania kredytowego
- Gwarancja ceny dewelopera
Posiadamy w ofercie również inne lokale w tej inwestycji.
Zadzwoń i umów się na bezpłatne spotkanie!
"Właścicielem ogłoszenia wraz z jego elementami jest Freedom
Nieruchomości Sp. z o.o. lub podmioty współpracujące. Wszelkie
prawa zastrzeżone. Kopiowanie, rozpowszechnianie oraz korzystanie z
niniejszych materiałów w jakikolwiek inny sposób wykraczający poza
dozwolony użytek określony przepisami ustawy z 4 lutego 1994 r. o
prawie autorskim i prawach pokrewnych (Dz. U. 1994, nr 24 poz. 83 z
późn. zm.) bez pisemnej zgody Freedom Nieruchomości Sp. z o.o. lub
podmiotów współpracujących jest zabronione i może stanowić
podstawę odpowiedzialności cywilnej oraz karnej.
Ponadto niniejsze materiały stanowią tajemnicę przedsiębiorstwa
Freedom Nieruchomości Sp. z o.o. lub podmiotów współpracujących w
rozumieniu ustawy z dnia 16 kwietnia 1993 r. o zwalczaniu nieuczciwej
konkurencji (Dz. U. z 2003 r., Nr 153, poz. 1503 z późn. zm.).
Niniejsze ogłoszenie nie stanowi oferty w rozumieniu Kodeksu
Cywilnego, lecz ma charakter informacyjny."
Powiadom o podobnych ogłoszeniach
Lokalizacja: Włocławek
Kategoria: Nieruchomości » Mieszkania » Sprzedaż
Cena: od 634500 zł do 858500 zł Powierzchnia : od 75 m2 do 101 m2
Chcę otrzymywać powiadomienia o nowych ofertach
Mariusz Wesołowski
Konto firmowe
Na Lento.pl od 02 sty 2024
Odpowiada szybko
Strona użytkownika
- Wypromuj ogłoszenie
- Zgłoś naruszenie
- Drukuj ulotkę
- Edytuj/usuń ogłoszenie
- Udostępnij ogłoszenie
- Dodaj na Facebook









